洗手台面石、窗台石、门槛石测量方式
— 甘肃多多28石材有限公司 —
非标洗手台面石、 窗台石测量方式
一、 非标洗手台面积=台面实际投影面积+挡水石面积+裙边面积
1、 非标台下盆洗手台面积
台面石面积=A*B+(A+B)*H+(D1+D2)*C
2、 非标台上盆洗手台面积

台面石面积=A*B+(A+B)*H+(D1+D2)*C
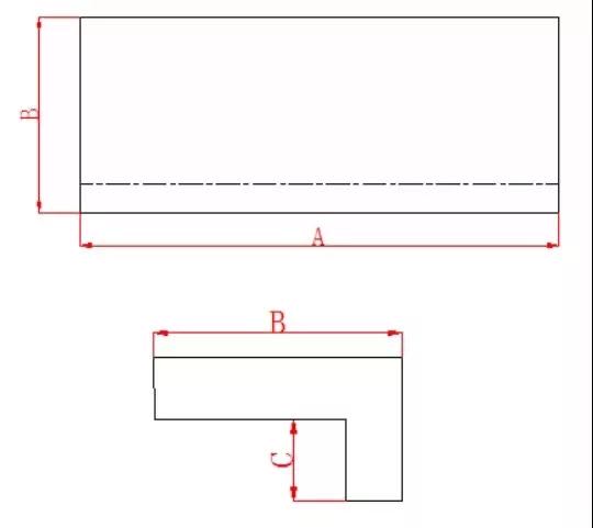
3、“L” 型非标洗手台面积

台面石面积=A1*B+A2*B2+(A1+B1+A2)*H+(DI+D2)*C
二、 非标窗台石面积=台面石实际投影面积+下档水沿面积
磨边长度=下挡水沿长度
1、“一” 字型窗台石面积
窗台石面积=A*C+D*E*2+B*H 磨边长度=B

2、“L” 字型窗台石面积

窗台石面积=A*B1+D*B2+F*G*2+(C+E)*H 磨边长度=C+E
3、“八卦” 型窗台石面积

窗台石面积=(A+E)*D/2+(B+F)*D/2+(C+G)*D/2+(E+F+G)*H 磨边长度=E+F+G
三、 非标门槛石面积=门槛石实际投影面积+加厚边面积
1、 无加厚边门槛石面积

门槛石面积=A*B
2、 有加厚边门槛石面积

门槛石面积=A*B+A*C
多多28石材案例图片








