悬浮大理石楼梯的制作过程!


悬浮式楼梯悬浮楼梯因造型时尚简约、节省空间等特点吸引了一大波关注。它极简,没有多余的线条;又打破了楼梯固有的自下而上的认知,直接从侧墙面延伸出来。
悬浮式楼梯把整个楼梯悬在半空,让楼梯宛如一件精致的艺术品,轻盈的结构,既能节省空间,还能起到装饰作用。

很多人看了心里发毛,没安全感,容易撞到头,小孩和老人有掉下去的危险。因此设计师大多会在楼梯的另一侧用钢丝绳或玻璃来做围挡,加强业主的安全感。

悬浮楼梯的制作流程大概分为
选墙——测量——开槽——装骨架——填补找平
首先,选择一面结石的墙要是钢筋混泥土剪力墙,足够承重。测量出要做楼梯部分的高度,计算出楼梯的步数。一般楼梯两阶之间的踢面高度取14~17.5cm,宽度一般在26.5~30cm之间。每各楼梯踏步可以交叠3~5cm左右,使用起来会更安心一点点。计算出楼梯步数之后,就可以按照计算把每一步的位置画在墙上。接下来就是安装楼梯骨架了。

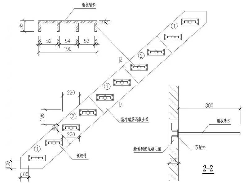
悬浮楼梯真正受力部分是在墙身。
所以墙内的预埋件的面积一定要大,伸出的结构一定要够强。

—甘肃多多28石材有限公司—